комплектующие, оборудование и инструменты для производства мебели
комплектующие, оборудование и инструменты для производства мебели
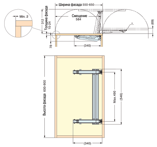
LIN-X 600
Механизм параллельного открывания фасада, предназначенный для открывания фасадов параллельно и в сторону. 
Ширина фасада: 550-600 мм
Высота фасада: 600-900 мм
Толщина фасада: 15-24 мм
Макс. вес фасада: 24 кг/фасад
Имеет ряд преимуществ над традиционными распашными или раздвижными дверьми.
Занимает минимум свободного пространства и идеален для верхних секций, где есть опасность удариться об открытую дверцу, или для нижних секций шкафа, где открытая дверца может заблокировать проход.

Прост в установке: используются монтажные планки петель типа «клип».
Когда дверца закрыта, механизм не виден. Когда дверца открыта, то механизм занимает минимум свободного пространства на смежной стенке корпуса и предоставляет свободный доступ к внутреннему пространству секции.
Благодаря тому, что фасады открываются наружу и в бок, зазор между двумя фасадами может быть меньше 2 мм, что не мешает их свободному параллельному открыванию. Рекомендуется вариант установки в «слепых» углах, например, когда кухня расположена в форме буквы “L”. Или на внешних углах отдельно стоящей секции - "кухонный остров".
В отличии от других решений Lin-X является оптимальным, т.к. механизм может быть открыт из любого положения и ручка может устанавливаться на фасаде в любой его части. Фасады перемещаются свободно и фиксируются в любом положении, кроме конечного, где механизм плавно доводит фасад.
Некоторые подобные системы имеют очень неудобную систему крепления к корпусу , тогда как LIN-X крепится на те же монтажные планки, что и обычная петля, установка которых так хорошо известна мебельщикам.